- ホーム
- スタッフブログ
スタッフブログ
【那須塩原】リフォーム図面の作成について(田子)
2020年07月25日(土)
那須塩原市の屋根塗装・外壁塗装はプロタイムズ那須塩原店へ!
スタッフブログをご覧いただきありがとうございます。
栃木県那須塩原市の塗装会社 プロタイムズ那須塩原店
株式会社とちのき塗装テックの田子です。
昨日はお休みをいただき、スポーツの日だったのですがお家でのんびりテレビを観て過ごしました。
真夏に向けて筋トレをしようと考えているのですが、なかなか実行できていません。(>_<)
今年こそ頑張ります!
さて、本日はリフォーム図面についてお話させていただきます。
プロタイムズ那須塩原店ではWalk in homeというアプリを使用して、リフォーム図面を作成しています。

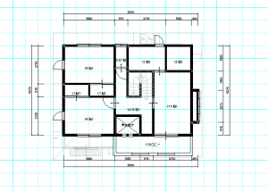
こちらが、Walk in homeで作成した平面図です。
お客様からお預かりした図面をもとに作成します。
平面図を作成するとパース図と立面図を作成することができます。

上がパース図で下が立面図です。
リフォーム図面を作成することで建物のより正確な塗布面積(窓などを除いた塗装する面積)を知ることができます。
塗布面積を知ることで、塗装に必要な塗料の缶数も分かるため、正確な塗布面積を出すことが重要となります。
そのため、プロタイムズ那須塩原店では品質の高い塗装工事を行うためにリフォーム図面を作成しています。
外壁塗装・屋根塗装を検討されている方はお気軽にご相談ください。
プロタイムズ那須塩原店のイベントはコチラ↓↓
https://test.protimes-nasushiobara.com/seminar/
外壁・屋根塗り替えお問い合わせはコチラ ↓↓
https://test.protimes-nasushiobara.com/contact/
那須塩原市で外壁塗装・屋根の塗り替えをお考えの際は、
プロタイムズ那須塩原店/郡山塗装那須塩原支店 までぜひご相談下さい!
お電話番号はコチラ ↓↓
0120-123-560
【営業時間9:00~18:00】
ぜひお気軽にお電話ください!!
動画配信始めました!
https://www.youtube.com/channel/UCsPqVPCEoYw84KJY45cjU9A
屋根塗装・外壁塗装に関する知識が盛りだくさん!
チャンネル登録お願いします!
オンライン商談始めました!
詳しくはコチラ
LINE相談始めました!
LINEのID検索にて「@395jrbvp」を入力してください。
来店や電話はちょっとハードルが高い!そんな方にオススメです(^^)
お友達登録お待ちしております!
創業92年 (株)郡山塗装本社 HPはコチラ ↓↓
プロタイムズ那須塩原店おすすめ塗料はコチラ↓↓
美壁革命 超低汚染リファインシリーズ
https://astec-japan.co.jp/feature/ultra-low-pollution-paint/
人気記事
まだデータがありません。

 0120-123-560
0120-123-560














